Y2F-1型電液動兩路換向閥
用途
Y2F-Ⅰ系列電液動兩路換向閥作為準確可靠的閥門開關,為正壓氣力輸送管道系統(tǒng)中的物料流動提供了可靠的換向。廣泛適用于:水泥、水泥生料、石灰石、煤粉、滑石、重晶石以及其他粉粒狀物料的輸送換向。
電液動兩路換向閥的充氣閥板采用柔性厚型板式合成纖維織物,是一種新型透氣層、具有耐高溫(可達150℃),耐腐蝕、耐磨損、吸濕性低、重量輕、表面輕、表面平正、使用壽命長等優(yōu)點,出料口與空氣輸送管路之間的傾角分為(圖示a°4°、6°、8°、10°、和12°)五種。
電液動兩路換向機構采用電液推桿作動力源。
選型說明:
型號編制說明

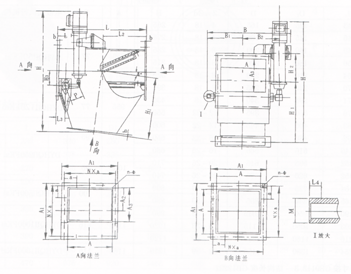
主要外形及連接尺寸
